ASSESSING INFORMATION- LAST UPDATED 09-20-2018
Parcel ID: 16J-17A-D14
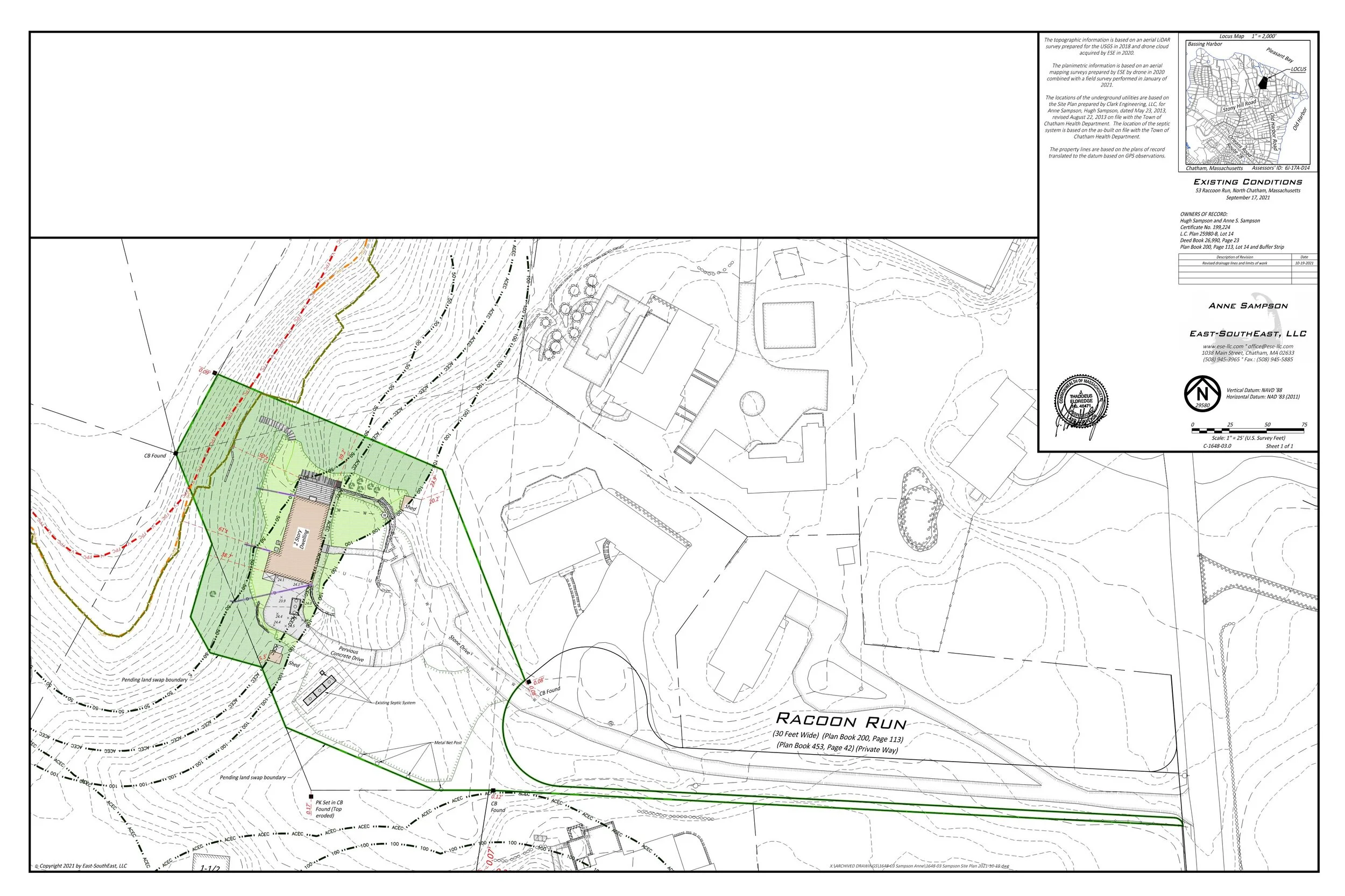
Assessors' Card
map is available for this property. Click the image for the sales page or HERE for more information.
ASSESSING INFORMATION- LAST UPDATED 09-20-2018
Parcel ID: 16J-17A-D14
Assessors' Card
map is available for this property. Click the image for the sales page or HERE for more information.